TINY HOUSE IN MY BACKYARD

TINY HOUSE IN MY BACKYARD

THIMBY 3.0

THIMBY’s GOALS:

  1. Demonstrate that tiny homes can provide affordable in-fill housing for those that are working, but currently unhoused.

  2. Create wealth building opportunities for both the residents of the tiny home and the homeowner that will be hosting it in their backyard. This includes creating pathways to home ownership for the tiny house resident and generating supplemental income for the tiny home’s host.

  3. Through the Tiny House Building Academy (THBA), we will leverage the local construction of these tiny homes to create workforce development/job training opportunities.

Funders:

  • UC Berkeley TGIF (The Green Initiative Fund)

  • Crowdfunding Donors

  • Mechanics Bank


Furniture:

Industry Sponsors:

  • Warmboard

  • Prosoco

  • Lumos

  • CarbonSmartWood

ThermaSteel tour:

The UC Berkeley organization Sustainable Housing at California (SHAC) has partnered with TENTMAKERS’ Tiny House Building Academy (THBA) to launch a collaborative initiative in the East Bay. Focused on addressing the affordable housing crisis, this partnership revolves around the THIMBY 3.0 and 3.1 projects to produce tiny home trailers and provide education on their construction.  SHAC students apply their expertise in architecture, engineering, and sustainable design, contributing to every stage of development - from conceptual design to crafting intrinsic furniture - to develop comfortable, space-efficient, and environmentally conscious housing solutions.  In return, THBA’s mentorship offers students hands-on experience with Revit modeling software, construction site communication, and practical building skills, bridging the gap between academics and real-world application.

SHAC and THBA aim to collaborate with companies specializing in energy-efficient building components to develop a state-of-the-art green tiny house model. By incorporating Thermasteel’s steel panels and Warmboard’s hydronic radiant floor heating system, we have the opportunity to create a highly efficient and thermally optimized building design.



OUR PARTNERS

Partners:

  • Parent Nonprofit: TentMakers, Inc.

  • SIPs Manufacterer + Education: ThermaSteel West

UPDATES

Design:

Our Work

  • architectural documentation

  • group design work

  • on-site construction

  • sustainable material procurement

  • Revit-modeling software learning

  • company collaborations

  • housing development mentorship

Current Project
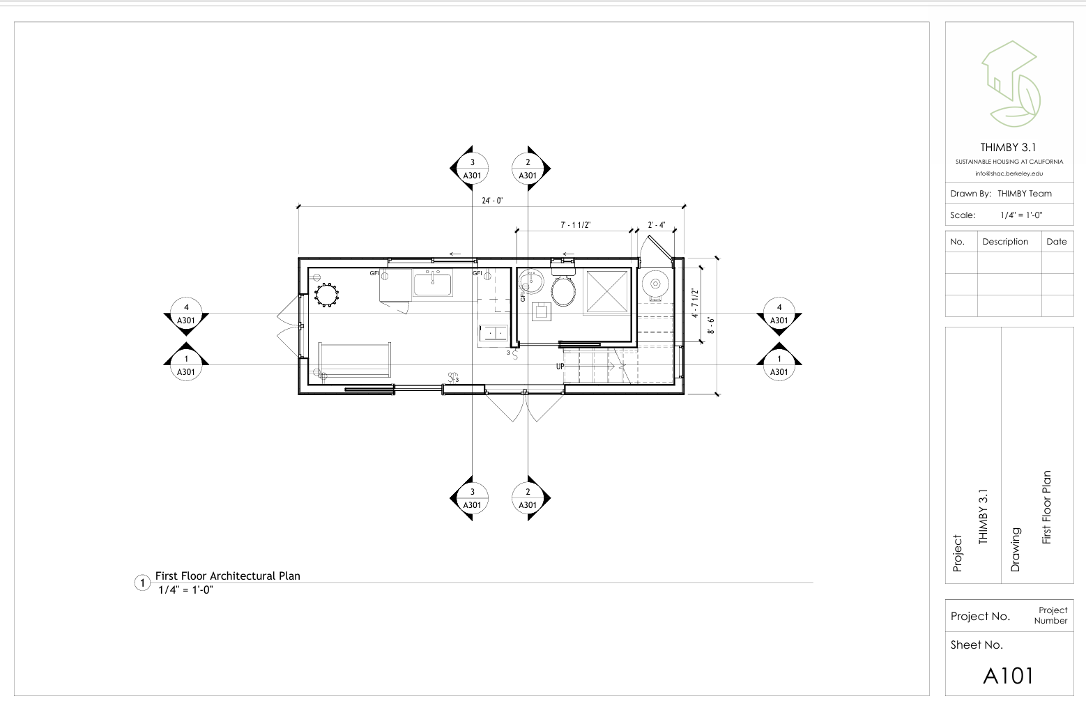
THIMBY 3.1

Year
2024-2026